【仲介手数料無料!!】日野市平山5丁目 新築戸建て(全3棟)1号棟 4790万円
「平山城址公園」駅徒歩2分、平山小学校へは5分(約350m)、スーパー「マックスバリュエクスプレス平山団地店」約8分(600m)、駅前にファミリーナートと図書館があります。落ち着いた雰囲気で暮らしやすいと思います。
-
ローンシミュレーションこの物件を購入した場合の、月々の支払い価格の一例です。借り入れを保証するものではございません。
- 返済期間
-
- 金利
-
- ボーナス時の増額(1回分)
-
- 借入金額:
-
- 頭金:
-

- 毎月の返済額:
(※元利均等方式 金利5.00%まで ※返済年数5~50年まで入力できます)
(※ボーナスは年2回で計算しています。1000万円まで入力できます)
(※物件購入時、その他諸費用が発生する場合がございます)
情報の見方担当者のコメント 菊池健一

- 京王線「平山城址公園」駅徒歩約2分。北側が「出口公園」という広めの公園です。線路は近いと言えば近いのですが、さほど気にならないかと思います。お買物は「マックスバリュ平山団地店」が便利かと思います。平山小学校へは、道路下にアンダーパスがあるので、大通りを渡らずに済みます。駅前にコンビニと図書館があります。大きなスーパーは、「南平」駅前にヤオコーがあります。静かで暮らしやすいと地域だと思います。
ポイント・特徴
物件概要
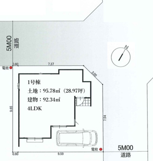
【新築一戸建】 物件番号:97742472 情報更新日:2025年11月14日 次回更新予定日:2025年11月28日所在地 東京都日野市平山5丁目36-11 交通 間取り/詳細 4LDK/
LDK 17.7帖 1室/洋室 6.8帖 1室/洋室 4.7帖 1室/洋室 4.5帖 2室建物面積(坪数) 92.34㎡(27.93坪) 価格 4,790万円 駐車場/月額料金 有(1台)/0円 土地の敷金/保証金 -/- 借地料/借地期間 -/- 土地権利 所有権 土地面積(坪数) 95.78㎡(28.97坪) 傾斜地部分面積 - 路地状敷地 - 私道負担面積/セットバック -/無 高圧線下面積 - 地目/地勢 宅地/平坦 接道状況 角地(東 公道 5.0m)(北 公道 5.0m) 建ぺい率/容積率 50%/100% 用途地域 第一種低層住居専用 都市計画 市街化区域 種別/構造 新築一戸建/木造 階建 2階建 築年月(築年数) 2026年 3月 (予定) 総区画数/販売区画数 1区画/1区画 向き - 現況 未完成 その他の法令上の制限 景観法/航空法/宅地造成及び特定盛土等規制法/高さ最高限度有/平山土地区画整理事業区域内(事業完了済み)。 取引態様/引渡時期 仲介/相談 建築確認番号 第SJK-KX255905370号 物件番号 97742472 取引条件の有効期限 2025年11月28日 設備条件 - 閑静な住宅地
- デザイナーズ
- 眺望良好
- カードキー
- 仲介手数料無料
- 都市ガス
- 公営水道
- 公共下水
- 食器洗い乾燥機
- システムキッチン
- 対面式キッチン
- 追焚機能浴室
- 浴室乾燥機
- 温水洗浄便座
- 洗髪洗面化粧台
- トイレ2ヶ所
- 浴室1坪以上
- 床下収納
- ウォークインクロゼット
- 複層ガラス
備考 こだわりで選びたい方におすすめ。日野市エリアで住まいをお探しなら「日野市平山5丁目 新築戸建て(全1棟)1号棟」。駅まで徒歩2分なので、移動時間を短縮できます。動線を意識したデザインのシステムキッチン付きで作業能率が上がります。日野市の京王線平山城址公園付近での暮らしを豊かにするため、住まい探しを全力でサポート致します。まずはお気軽にご連絡ください。 取扱会社 - 「いえたま」
- 東京都多摩市一ノ宮4丁目1-25 桜ヶ丘イン 2階
- TEL:042-374-2229
- 東京都知事 (4) 第92290号
- 公益社団法人 全日本不動産保証協会
公益社団法人 不動産保証協会
公益財団法人 東日本不動産流通機構
※地図上に表示される物件の位置は付近住所に所在することを表すものであり、実際の物件所在地とは異なる場合がございます。
物件お問い合わせ
- 公開物件数
-
件
- 本日の更新件数
-
件
同じエリアの新築一戸建
価格と住所の近い物件
- 【仲介手数料無料!!】日野市神明3丁目 新築戸建て(全3棟)3号棟 4799万円
- 4,799万円 2LDK/87.76㎡
- 東京都日野市神明3丁目
- 中央線「日野」駅 徒歩9分
- 【仲介手数料無料!!】日野市東豊田4丁目 新築戸建て(全6棟)F号棟 4780万円
- 4,780万円 3LDK/98.32㎡
- 東京都日野市東豊田4丁目
- 中央線「日野」駅 徒歩21分
- 【仲介手数料無料!!】日野市東豊田4丁目 新築戸建て(全6棟)D号棟 4780万円
- 4,780万円 3LDK/97.29㎡
- 東京都日野市東豊田4丁目
- 中央線「日野」駅 徒歩21分
- 【仲介手数料無料!!】日野市新町3丁目 新築戸建て(9期全6棟)E号棟 4780万円
- 4,780万円 4LDK/101.92㎡
- 東京都日野市新町3丁目
- 中央線「日野」駅 徒歩12分
- 【仲介手数料無料!!】日野市栄町4丁目 新築戸建て(全2棟)1号棟 4780万円
- 4,780万円 3LDK/73.70㎡
- 東京都日野市栄町4丁目
- 中央線「日野」駅 徒歩11分



















