【仲介手数料無料!!】日野市大坂上4丁目 新築戸建て(全3棟)No3号棟 4190万円
徒歩12分の場所に日野市立日野第七小学校があります。設備も充実している新築戸建ての物件はいかがでしょうか。日常生活で利用頻度の高い水回りだからこそ、使い勝手のいいシステムキッチンを選んでみませんか。ピッキングに強いカードキータイプの玄関です。中央線日野周辺に住むことができます。不動産の詳細は、「いえたま」にご連絡ください。
ローンシミュレーションこの物件を購入した場合の、月々の支払い価格の一例です。借り入れを保証するものではございません。
- 返済期間
-
- 金利
-
- ボーナス時の増額(1回分)
-
- 借入金額:
-
- 頭金:
-

- 毎月の返済額:
(※元利均等方式 金利5.00%まで ※返済年数5~50年まで入力できます)
(※ボーナスは年2回で計算しています。1000万円まで入力できます)
(※物件購入時、その他諸費用が発生する場合がございます)
担当者のコメント 菊池健一

- 歩いて440mの場所に、食品の店おおた多摩平店があります。サービスルーム付きのSLDKの間取りは収納スペースも十分です。これからの新生活での暮らしを一新するために、新築戸建てはいかがでしょうか。浴室は冷めた湯を再び沸かせる追焚機能が付いています。当社スタッフが日野市での住まい探しをサポート致しますので、まずはお気軽にお問い合わせください。その際、ご希望条件なども併せてお伝えいただけるとよりスムーズです。
ポイント・特徴
物件概要
【新築一戸建】 物件番号:96633184 情報更新日:2025年11月14日 次回更新予定日:2025年11月28日| 所在地 | 東京都日野市大坂上4丁目13-2 | ||
|---|---|---|---|
| 交通 | |||
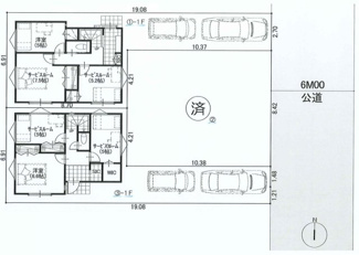
| 間取り/詳細 |
1LDK+3S(納戸)/ S 5.0帖 1室/S 5.0帖 1室/洋室 6.6帖 1室/LDK 17.1帖 1室/S 1.8帖 1室 |
建物面積(坪数) | 82.20㎡(24.86坪) |
| 価格 | 4,190万円 | ||
| 駐車場/月額料金 | 有(2台)/0円 | ||
| 土地の敷金/保証金 | -/- | 借地料/借地期間 | -/- |
| 土地権利 | 所有権 | 土地面積(坪数) | 88.24㎡(26.69坪) |
| 傾斜地部分面積 | - | 路地状敷地 | 27.22㎡ |
| 私道負担面積/セットバック | -/無 | 高圧線下面積 | - |
| 地目/地勢 | 宅地/平坦 | 接道状況 | 一方(東 公道 6.0m 間口 2.6m) |
| 建ぺい率/容積率 | 50%/100% | 用途地域 | 第一種低層住居専用 |
| 都市計画 | 市街化区域 | 種別/構造 | 新築一戸建/木造 |
| 階建 | 2階建 | 築年月(築年数) | 2025年 10月 (予定) |
| 総区画数/販売区画数 | -/- | 向き | - |
| 現況 | 未完成 | その他の法令上の制限 | 景観法/航空法/宅地造成及び特定盛土等規制法 |
| 取引態様/引渡時期 | 仲介/相談 | 建築確認番号 | 第SJK-KX255501290号 |
| 物件番号 | 96633184 | 取引条件の有効期限 | 2025年11月28日 |
| 設備条件 |
|
||
| 備考 | ぜひ一度見ていただきたい、「日野市大坂上4丁目 新築戸建て(全3棟)No3号棟」です。食品の店おおた多摩平店まで440mです。浄水器は蛇口をひねるだけで、とても美味しいお水が飲めます。癒しと安らぎを求めるなら、1SLDKの間取り。「いえたま」へお問い合わせいただければ、中央線日野近くにある不動産の詳細情報をお教えいたします。 | ||
| 取扱会社 |
|
||
※地図上に表示される物件の位置は付近住所に所在することを表すものであり、実際の物件所在地とは異なる場合がございます。



















